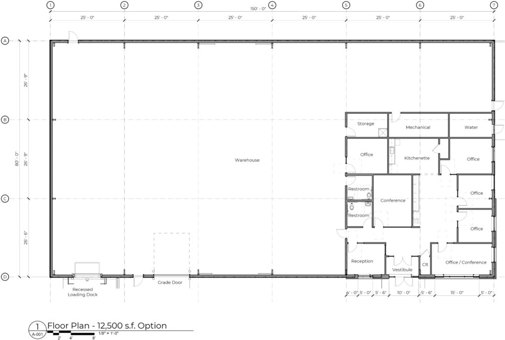
Ideal for manufacturing facilities, packaging and distribution operations, and businesses with growing storage needs, this 12,500 square-foot pre-engineered Butler model has the following features:
Building dimensions: 80’ x 150’ x 25’ low eave
(1) 12’ x 14’ Overhead grade door
Butler Shadowall metal siding
Butler MR-24 standing seam roof
Storefront glazing windows and glass entrance door in office area
Recessed loading dock with 10’ x 10’ overhead door and dock leveler
Build to suit office needs
(5) Offices & (1) conference room
(2) Single occupant restrooms
Kitchenette with fridge and sink
Hollow metal frames and doors for egress doors
200 Amp, three phase electrical service, LED lighting, exterior illumination
Utility allowance
4” Thick concrete slab figured in office area and 6” in warehouse/shop area
2’8” Masonry wainscot in office area and masonry leveling course around rest of building perimeter
Architectural enhancements suitable for typical protective covenant requirements
All architectural and engineering fees and building plan approvals included