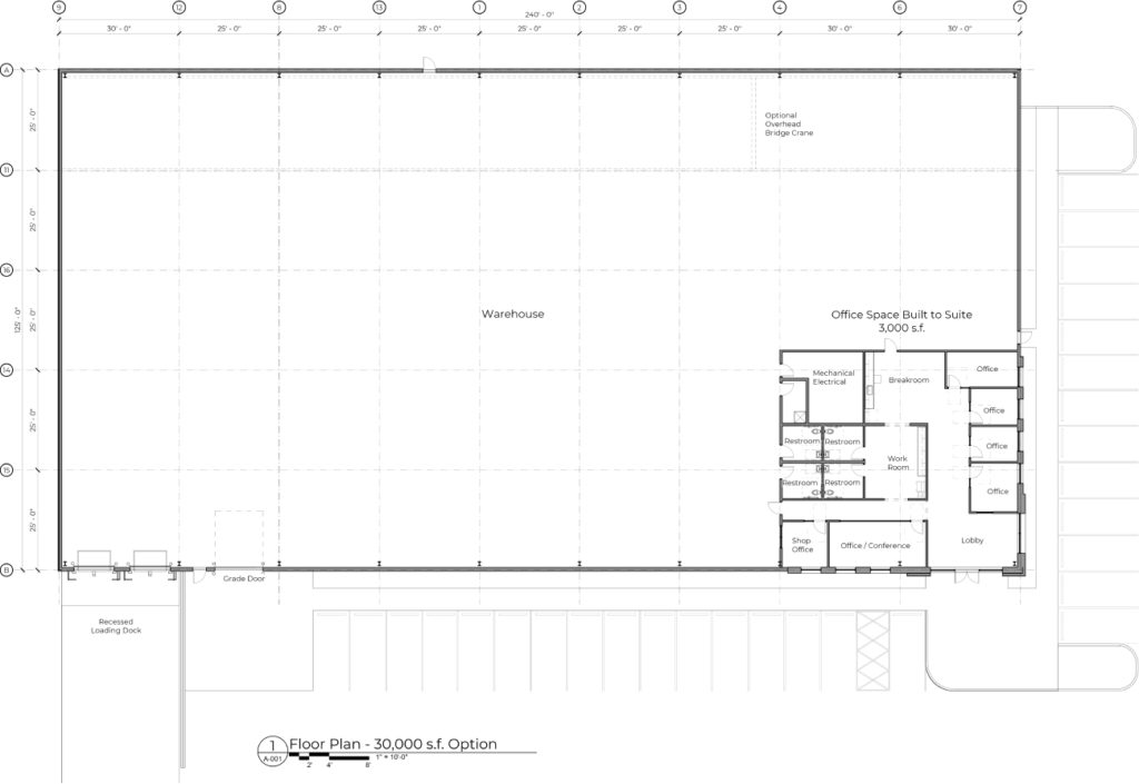
This 30,000 square-foot pre-engineered Butler model is an excellent option for growing transportation and logistics operations, manufacturing facilities, and packaging, distribution, and warehousing businesses. This model has the following features:
Building dimensions: 125’ x 240’ x 28’ low eave